"La forma urbana evoluciona entre tipo e incidente, fábrica y discontinuidad, historia y el momento del diseño. Este diálogo influenció fuertemente el diseño del Museo de Artes Decorativas en Frankfurt am Main. El partido se desarrolló de una noción de contexto que toma no solamente elementos geográficos sino también históricos y tipológicos. En este sentido, y en contraste con algunos de mis edificios más tempranos para sitios más rurales o menos históricos, el museo es enfáticamente una institución pública y urbana, un rechazo al aislamiento modernista del edificio como un objeto autónomo distanciado de su entorno. El esquema aquí está pensado para conectar: para responder, engrandecer y reforzar el contexto público y la fábrica urbana."Richard Meier.
Foto Cortesía de Darrel Godliman.El Museo de Artes Decorativas en Frankfurt, Alemania, fue el primer museo diseñado Richard Meier, quien resultó ganador de un concurso en el que participó Robert Venturi entre otros. Este detalle es significativo en el contexto en que se dio, ya que era 1979, una época en la que el posmodernismo historicista estaba en su apogeo y Venturi era uno de sus más notorios exponentes. La propuesta de Meier es valiosa pues resolvió el proyecto tomando en cuenta uno de los reclamos más airosos del posmodernismo, la integración al contexto histórico, pero lo hizo utilizando un lenguaje moderno, con trazos corbuserianos y sin caer en el facilismo de copiar lenguajes e iconos pretéritos. Pero tal vez lo más importante del museo sea su arquitectura urbana y rol en el ensamblaje de los volúmenes y espacios circundantes.

Foto cortesía Richard Meier & Partners Architects
El Museo de Artes Decorativas en Frankfurt fue también una referencia para la proyectación del Museo High en Atlanta, que si bien fue diseñado un año después, se culminó antes que su contraparte alemana.CONTEXTO
Muchos edificios fueron destruidos en Frankfurt durante los bombardeos aliados de la Segunda Guerra Mundial. Un grupo de mansiones de principio del siglo XVIII se asienta en las orillas del apacible río Meno (Main en alemán), algunas de ellas reconstruidas fielmente a las originales.
Una de ellas, la Villa Metzler, había sido construida en 1803 por el farmacéutico Peter Salzwedel, y luego adquirida por el banquero Georg Friedrich Metzler en 1851. Entre 1862 a 1863 se le amplió un tercer piso y una buhardilla adicional.

Dada su importancia patrimonial fue adquirida en 1961 por la ciudad de Frankfurt y convertida en el museo de Artes y Oficios en 1967.
Los bombardeos habían dejado un área libre al lado de la casa, por lo que se decidió ampliar el museo en 1979, convocando para ello un concurso internacional, del cual salió ganador Richard Meier.
CONCEPTO

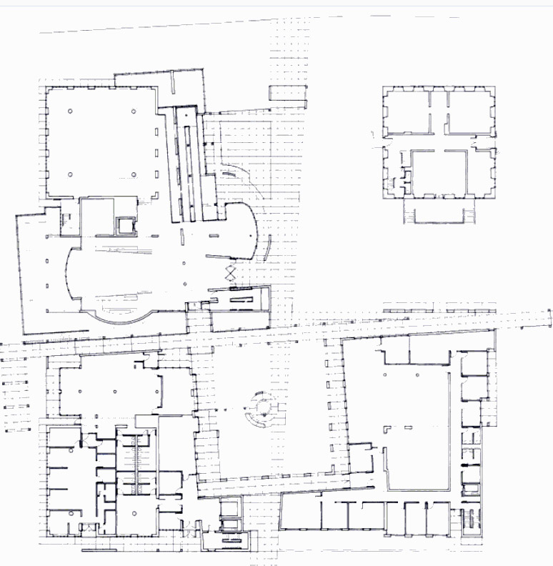
Meier partió de la volumetría de esta casa para el desarrollo de su propuesta, analizando cuidadosamente la proporción de la misma y reduciéndola a una grilla cúbica. Así, se consideraba el tamaño de la villa y las dimensiones y ritmo de las ventanas de la misma en la nueva edificación.
Cortes transversales, muestran la integración del nuevo volumen siguiendo la misma proporción y altura de la villa existente.Luego, hizo tres copias de este cubo disponiéndolas simétricamente en el terreno y generando una grilla virtual ordenadora. Posteriormente, sobrepuso una grilla girada 3.5 °, cuya rotación obedece a la orientación del río, y que alberga principalmente las circulaciones, tanto exteriores como interiores. Todos los elementos de la composición encajan dentro de estas dos tramas superpuestas.

Este juego de relaciones permite integrar francamente al edificio con el parque circundante, gozando de una fluidez espacial que invita a los paseantes a acercarse al edificio.
Una pérgola semicircular aparece como un tensor espacial que recibe al transeúnte y lo conduce hacia el museo. Del mismo modo la plazuela del museo tiene una pérgola similar que, albergando una banca, se comporta como una expansión del museo.


A ésta integración entre el interior y exterior contribuye también la generosa superficie vidriada del museo. El ingreso principal, ubicado lateralmente a la circulación aproximación al edificio, es apenas un pequeño cilindro que asoma dentro de una mampara, pero la proporción de los volúmenes que definen el espacio de entrada, tanto al exterior como la múltiple altura al interior, le da un porte significativo.


INTERIOR
El museo comprende tres niveles, organizados en torno a un espacio central.
En el primero, las funciones se distribuyen en torno a un patio. Aquí se encuentra el volumen curvo del foyer de acceso, en cuyo costado se adosan salas de exposición. En otra sección se ubica el Restaurante Emma Metzler. Al otro lado de la piazza se ubica una biblioteca y la administración, mientras que en la mansión decimonónica se ubican salas de estar.
Primer Nivel En el segundo nivel se encuentran las salas de exhibición, mayormente dedicadas al arte europeo. Hay cuatro zonas, que se vinculan entre sí por puentes acristalados. Comenzando por el volumen del ingreso y en contra de las manijas del reloj se exhiben diseños de Dieter Rams, arte medieval y renacentista, al otro extremo arte barroco y en la villa se exhibe mobiliario de época.
Segundo nivel, enfatizando las escaleras.En el tercer nivel sólo las áreas nuevas del museo están vinculadas, dejando libre a la villa. Aquí se exhiben artículos de diseño contemporáneo o fotografía como la del español Chema Madoz. Hay también una colección de arte del Este asiático y al otro lado se muestra arte islámico.
Un elemento protagónico que hilvana los diferentes niveles y galerías es una rampa, ubicada a un costado del foyer. Esta rampa, que recuerda a la arquitectura de Le Corbusier, permite el ingreso abundante de luz a través de la claraboya y la mampara que la circundan, además de ofrecer al visitante espléndidos panoramas de la ciudad y el río Meno.

Esta misma técnica, de organizar las galerías en torno a una rampa, fue utilizada en el Museo High de Atlanta, aunque en ese caso se trata de una circulación curva frente a un gran atrio, inspirada en el Museo Guggenheim de Nueva York de Frank Lloyd Wright, pero trabajada sobre la base de la propuesta meieriana en Fráncfort. El uso de rampas en museos, también presentes, por ejemplo, en el Museo de Arte Contemporáneo en Barcelona, obedece al interés del arquitecto en permitir observar una obra de arte desde distintos puntos de vista.

En todo el edificio está presente el impresionante manejo de luz, ya sea directa o lateral, así como el juego espacial y volumétrico producto de la colisión de ambas grillas giradas. Sin embargo, el museo se enmarca dentro de un ordenamiento lógico debido a la rigurosa geometría que lo acoge y una solemne uniformidad gracias al impecable uso del color blanco en todo el conjunto.



COLECCIÓN
Precisamente es el uso del color blanco el que, según el arquitecto, permite servir de marco a los objetos exhibidos, compuestos mayormente por mobiliarios y elementos decorativos (de allí el nombre del museo), pero que pertenecen a distintas épocas, estilos y regiones.




En muchos ambientes efectivamente el blanco sirve de telón de fondo para esta multiplicidad de estilos, pero en algunos casos me dio la impresión que el tamaño de los objetos mostrados se perdía en la enorme escala de estos recintos glaucos.




LA VILLA METZLER

Reminiscente de un paisaje añejo francfortés, esta casa de porte elegante se vincula al museo mediante un puente acristalado, que se incrusta directamente en uno de los ambientes de la misma en el segundo nivel. El tránsito entre la modernidad y el pasado se hace de forma elocuente pero no intempestiva.


Los diversos ambientes del segundo y tercer nivel permiten ilustrar, en un contexto y entorno de época, ejemplos y estilos de mobiliario europeo del barroco. Es claro el contraste entre la exhibición de los muebles como objetos aislados dentro de un fondo blanco para luego verlos en un ámbito que recrea la atmósfera de la época. Los muebles dejan de ser aquí actores aislados para integrarse en un conjunto decorativo integral.



"Creo que es posible ver todo mi trabajo como una secuencia de investigaciones en torno al intercambio espacial entre los ámbitos público y privado. Este intercambio se expresa en una variedad de concepciones, pero está siempre relacionado de alguna manera a la noción de paseo arquitectónico. Finalmente, y otra vez, el mío es un intento de encontrar y redefinir un sentido de orden, de entender, entonces, una relación entre lo que ha sido y lo que puede ser, para extraer de nuestra cultura lo eterno y lo tópico".Richard Meier.
VER TAMBIÉN
- OTRAS OBRAS DE RICHARD MEIER























































